大润发贵宾厅

1630117284737214
1630117347521649
1630117357111514
新闻资讯
cer
联系方式
  • 江宁工厂:漯河市江宁区江宁街路西宁路6号
  • 江北工厂:漯河市浦口区桥林工业园12-88号
  • 025-89622576
  • 13951912580
  • 400-1120-899
  • 025-89622573
  • sale@sunnyrack.com
公司新闻

辽宁某食品企衣蜂库穿梭车系统项目成功交验

2020.11.06

项目客户:辽宁某食品股份有限公司

货架类型:穿梭车货架

客户介绍:该公司是一家缔造于1995年的农牧食品企业,主交易务为饲料,饲料原料和;げ芬滴,畜禽产业化,并涉猎智能化养殖设备,动物健全产品、食品等 。目前公司参股170余家下属公司,产品远销多个国度和地域,并在尼泊尔、菲律宾、印尼、俄罗斯等七个国度建有11座工厂 。曾获得“中国轻工业百强企业“,“中国轻工食品行业50强”,”2020绿色信誉指数TOP50“等荣誉 。

项目概况:

11月初,大润发贵宾厅货架(原漯河中阳)与该客户签定的穿梭车货架项目装置结束,并实现最终验收调试工作 。极大地提高了客户仓库空间利用率,受到了客户的高度认可,客户也暗示后期有项目会持续和我公司合作 。

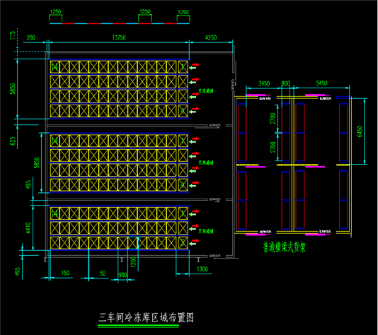
此项目分为三个综合仓库,共计5691个货位1、冷冻库(-15℃— -18℃)1526个货位;2、恒温库(0℃-5℃)2760个货位;3、低温库(-22℃— -25℃)1405个货位 。

项目平面安插图及现场照片:

image.png

image.png

image.png

image.png

image.png


微信

1645086388654094

微信联系
返回顶部
【网站地图】